- 雷達液位計料位計系列產品
- 壓力/液位/差壓/密度變送器
- 液位儀表系列
- 流量儀表系列
- 物位儀表系列
- 液位/溫度/壓力/流量-報警儀
- PLC/DCS自動化控制監控系統
- GPRS無線遠傳裝置
- 有紙/無紙記錄儀系列
- 溫度儀表系列
- 分析儀|檢測儀|校驗儀系列
全國銷售熱線:400-9280-163
電話:86 0517-86917118
傳真:86 0517-86899586
銷售經理:1560-1403-222 (丁經理)
??? ? ? ? 139-1518-1149 (袁經理)
業務QQ:2942808253 / 762657048
網址:http://www.webcube.com.cn
電話:86 0517-86917118
傳真:86 0517-86899586
銷售經理:1560-1403-222 (丁經理)
??? ? ? ? 139-1518-1149 (袁經理)
業務QQ:2942808253 / 762657048
網址:http://www.webcube.com.cn
應用于制藥企業生產中的液位檢測技術的種類及選擇指導
發表時間:2018-09-18 ??點擊次數:1358? 技術支持:1560-1403-222
前言:
制藥企業生產中會應用到非常多的液位測量儀表,無論是從原料的儲運,還是中間體,成品,都離不開對于液位的計量,本文簡要介紹了制藥企業用于液位監測的直接檢測技術,著重闡述了液位間接檢測技術中壓力法、浮力法、電學法、超聲波法、雷達法、音叉振動法的原理及其相應液位計的特點,為制藥企業在選擇液位檢測技術時提供參考。
0 引言
隨著智能制造時代的到來,以質量為生命線的制藥企業如何搭載“智能制造”這趟快車,是眾多制藥企業面臨的重大課題。在智能化生產過程中,液位檢測和監控在醫藥、飲料等行業的生產中扮演著重要的角色,液位監控直接影響到產品的質量,甚至關系到生產過程能否順利進行。同時,液位檢測設備作為一種重要的計量器具,是生產過程安全、受控的重要保證要素之一。合格的液位檢測設備、過硬的液位檢測技術,不僅為制藥企業的原輔料、半成品和成品質量保駕護航,還在GMP的實施過程中有著舉足輕重的地位。因此,為了保障產品質量的一致性,只有科學地選擇液位檢測技術,才能保障檢測結果的可靠性、穩定性。
1 液位檢測技術
液位檢測總體上可以分為直接檢測和間接檢測兩種方法。直接檢測法是一種簡單、直觀的液位檢測方法,它是利用連通器的工作原理,將容器中的液體引入帶有標尺的觀察管中,通過標尺讀出液位高度。
間接檢測法是將液位信號轉化為其他相關的信號進行測量的方法。
2 直接檢測技術
玻璃管液位計是一種直讀式液位測量儀表,屬直接檢測技術,其使用原理如圖1所示,可用于制藥企業生產過程中一般儲液罐和靜置罐中液位的現場檢測或者普通實驗室的液位測量。
優點:結構簡單,測量直觀,是傳統的現場液位測量工具。
缺點:其材質容易破損,且不易于清潔,長時間使用會影響指示清晰度?,F在該液位計已經不常用了。

3 間接檢測技術
制藥生產通常是一個系統而復雜的過程,現場測量的環境和條件也較復雜、特殊,因此多采用間接檢測技術進行液位檢測,如壓力法、浮力法、電學法等。
3.1 壓力法檢測技術
壓力法檢測技術是依據液體重量所產生的壓力進行測量。由于液體對容器底面產生的靜壓力與液體高度成正比,因此通過測量容器中液體的壓力即可測算出液位高度。
(1)用于測量開口容器液位高度的壓力式液位計有三種,即潤中壓力表式液位計、潤中法蘭式液位變送器、吹氣式液位計。
(2)用于密閉容器中的液位測量時,需要使用差壓式液位計,它可在測量過程中消除液面上部氣壓以及氣壓波動對顯示值的影響。

差壓式液位計工作原理如圖2所示。
靜壓式液位計的工作原理是通過安裝于底部的壓力傳感器檢測底部液體壓力,再轉換計算出液位高度,底部液體壓力的參考值為與頂部連通的大氣壓或者已知氣壓。靜壓式液位計的檢測方式是接觸式檢測,要求采用高精度、齊平式壓力傳感器,同時換算過程需要不斷校準。
優點:檢測不受液位高度限制,測量液位時,完全不受氣包或容器內裝部件的影響。
缺點:液位高度越高,對傳感器的精度要求也越高,長時間使用或者更換液體時需要重復校準,不適用于介質密度和溫度變化明顯的環境。
3.2 浮力法檢測技術
浮力法檢測技術是依據力平衡原理,通常借助做成空心體的浮子類懸浮物,使它在平衡時能夠浮于液面。浮子會隨液位高度的變化而在液面上下移動,所以測出浮子的位移即可知液位的變化量。浮子式液位計按浮子形狀不同,可分為浮子式、浮筒式兩種,具體的液位計有鋼帶浮子式液位計、浮筒式液位計、磁浮子液位計(如磁翻板液位計)。在制藥行業中常將磁翻板液位計用于儲液罐、發酵罐等儲液設備上。潤中磁翻板液位計是根據浮力原理和磁性耦合作用工作的,如圖3所示,它可用于各種塔、罐、槽、球型容器和鍋爐等設備的介質液位檢測。當被測容器中的液位升降時,液位計主導管中的浮子也隨之升降,浮子內的**磁鋼通過磁耦合傳遞到現場指示器,驅動紅、白翻柱翻轉180 ° 。

當液位上升時,翻柱由白色轉為紅色;當液位下降時,翻柱由紅色轉為白色。指示器的紅、白界位處為容器內介質液位的實際高度,從而實現液位的指示。
優點:磁翻板液位計可以實現高度密封,防泄漏,適用于高溫、高壓、耐腐蝕的場合。它彌補了玻璃板(管)液位計指示清晰度差、易破裂等缺陷,且全過程測量無盲區,顯示清晰,測量范圍廣。
缺點:價格較高,工作壓力不能太高,并隨液體的密度不同,其浮子在液體中的高度也不同,需要以實際介質進行標定。
3.3 電學法檢測技術
電學法檢測技術按工作原理不同可分為電阻式、電感式和電容式液位計。電學法檢測技術沒有摩擦件和可動部件,信號轉換、傳送方便,便于遠程傳輸,穩定可靠,且輸出可轉換為統一的電信號,與電動單元組合儀表配合使用,可方便地實現液位的自動檢測和自動控制。


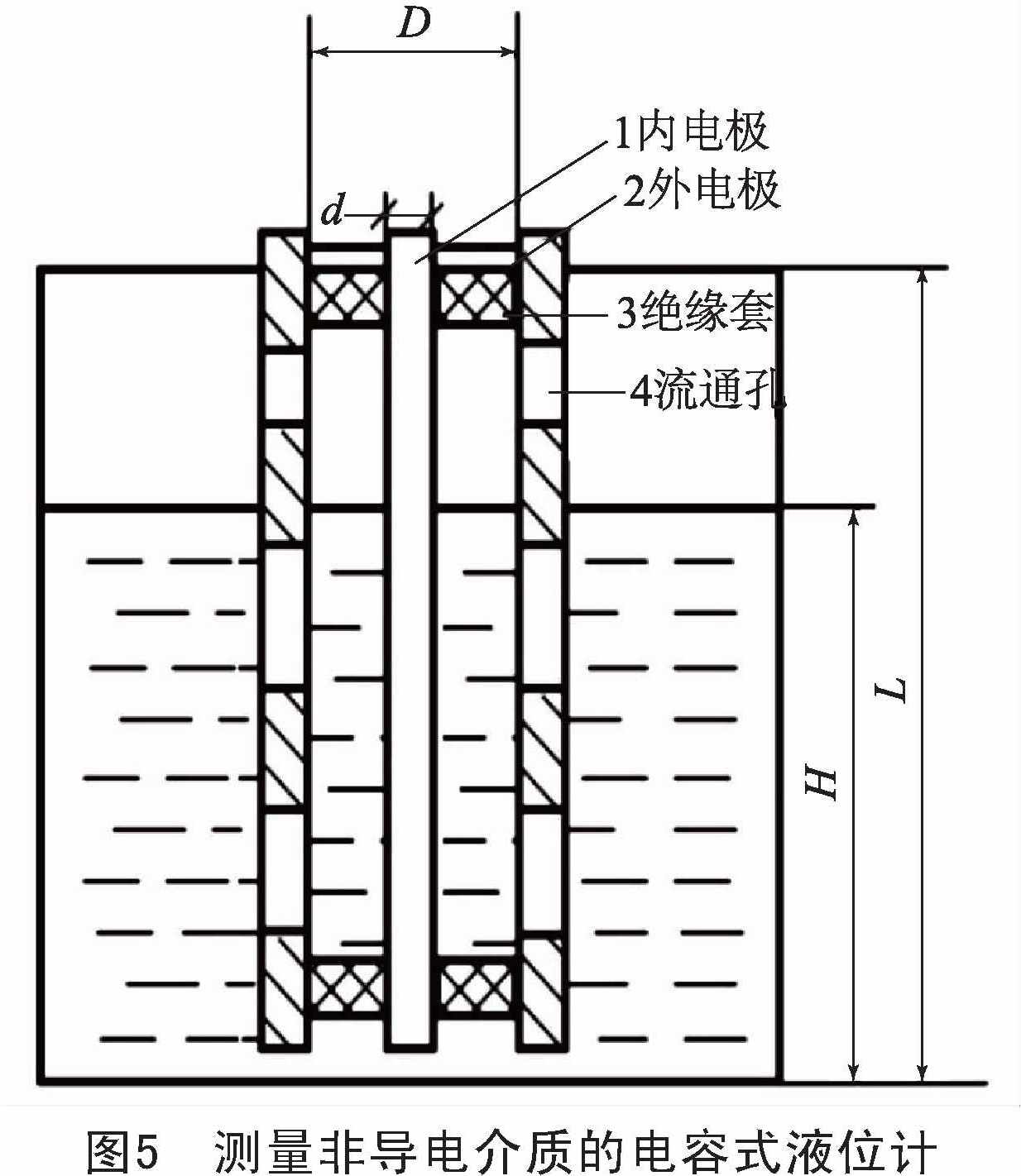
制藥行業常用的是電容式液位計。電容式液位計利用液位高低變化影響電容器電容量大小的原理進行測量,液位變化引起等效介電常數變化,從而使電容器的電容量變化。潤中電容式液位計的適用范圍非常**,既能測量導電介質(圖4)和非導電介質(圖5)的液位,又可測量強腐蝕性介質、高溫介質、密封容器的液位,與介質的黏度、密度、工作壓力無關。
測量導電介質的電容式液位計測量非導電介質的電容式液位計
此外,電容式液位計還能測量傾斜晃動和高速運動的容器的液位,可作為一種連續測量的液位控制器。
雖然電容式液位計價格較低,安裝容易,但是電容傳感器容易受到不同容器材質和溶液屬性的影響,測量重復精度較低,需定期維修和重新標定,使用壽命也不長。
3.4 超聲波法檢測技術
超聲波法檢測技術是將較短的超聲波脈沖發送到被測物質,這些脈沖被介質表面反射并被傳感器重新接收,測量儀表利用聲波所需的運行時間和輸入的容器高度可以計算出液位。
超聲波液位計利用波在介質中傳播的特性,具備安裝容易、靈活性高等特點,通??砂惭b于高處進行非接觸式測量。但是,其容易受到超聲波傳播的能量損耗影響。
具體點說,超聲波在傳播中遇到相界面時,有一部分反射回來,另一部分則折射入相鄰介質中。當它由氣體傳播到液體或固體中,或者由固體、液體傳播到空氣中時,由于介質密度相差太大而幾乎全部發生反射,且當超聲波液位計使用于含蒸汽、粉塵等環境中時,檢測距離將會明顯縮短,所以不建議在吸波(如泡沫等)環境中使用超聲波液位計。
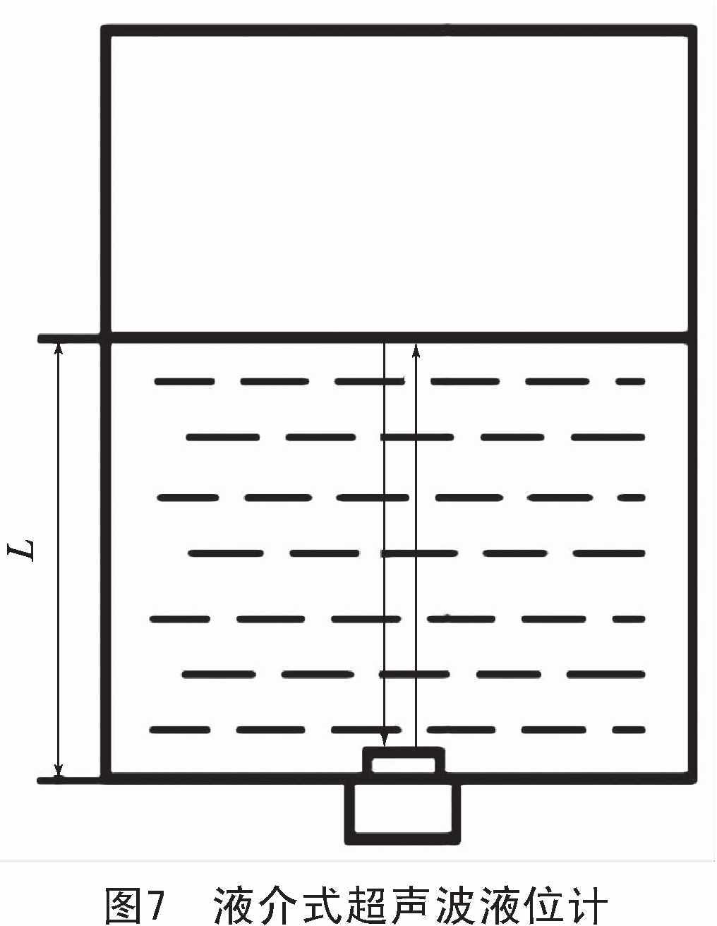
氣介式超聲波液位計液介式超聲波液位計固介式超聲波液位計
在制藥行業中,超聲波液位計主要應用于儲罐和開口水池。由于超聲波可以在不同介質中傳播,所以超聲波液位計可分為氣介式(圖6)、液介式(圖7)、固介式(圖8)三種,常用的是氣介式和液介式超聲波液位計。按超聲探頭的不同工作方式,超聲波液位計又可分為自發自收的單探頭和收發分開的雙探頭兩種,一般多采用單探頭超聲波液位計,因為其結構簡單、安裝方便,維修工作量也較小,而且它可直接測出距離,不必校準。


3.5 雷達法檢測技術
雷達液位計工作原理如圖9所示。在制藥行業通常將雷達液位計應用于提取罐、水液儲罐、酸堿儲罐、漿料儲罐、小型儲油罐等設備上。潤中雷達液位計通過天線系統朝介質的方向發射短促的雷達脈沖,介質表面反射信號波,隨后被天線系統重新接收,測量儀表利用雷達脈沖所需的運行時間和輸入的容器高度可以計算出液位高度。雷達液位計可測量腐蝕性介質,對衛生要求很高的場合同樣適用,還適用于各種含泡沫的液位檢測,不受液體顏色影響,甚至可應用于高黏性液體,不受粘附物或冷凝物的影響,不受噪音、蒸汽、粉塵、真空等工況影響,受外部環境干擾相對較小。其安裝方式有多種選擇:頂部安裝、側面安裝、旁通管安裝、導波管安裝。
雷達液位計工作原理
優點:可用于液體的非接觸式檢測,測量精度很高,調整過程非常簡單,無需充填和排空容器,節約時間,可實現自動化液位監測。
缺點:價格昂貴。
3.6 音叉振動法檢測技術
音叉式液位測量僅為開關量輸出,不能用于連續性監控液體高度。音叉液位限位開關的工作原理為:當液體填充兩個振動叉時,共振頻率改變,依靠檢測頻率改變而發出開關信號。具體來說,振動元件(音叉)在壓電陶瓷的驅動下,以一定的機械諧振頻率振動,壓電陶瓷被機械固定,因此不受溫度驟變的限制。一旦振動元件接觸到被測介質,振動頻率即會改變,一體式的電子部件檢測到這個振動頻率的變化,并轉換開關命令,從而達到液位報警或控制的目的。
音叉液位限位開關的特點:價格較低,靈敏度高,體積小,重量輕,安裝方便,適應性強,被測液體不同的電參數、密度對測量均不產生影響,中等黏度、高溫、高壓等惡劣條件對檢測也不會產生影響。開關的檢測由電子電路完成,無活動部件,所以音叉液位限位開關一經安裝投運便不需特殊維護保養,當有過多被測介質污染和粘附音叉時,清理掉即可,但在有泡沫存在的場合則需要進行現場調校。

4 結語
一種良好的液位檢測技術應該在滿足工藝要求的前提下,不但需確保測量穩定、安全可靠,而且要安裝便捷、維護簡單、經濟實惠。制藥企業在選擇液位檢測技術和液位計時應考慮的因素包括:
(1)測量對象,被測液體的物理、化學性質,如酸堿性、導電性、是否產生泡沫以及應用環境的壓力和溫度范圍等。
(2)測量和控制要求,是液位式測量還是連續式測量,是接觸式還是非接觸式測量,以及測量范圍和精度、安全可靠性和施工便捷性。
(3)成本低。
隨著自動化儀表技術的發展,選擇測量液位的方法及相應的儀表也在不斷改進和更新,目前還沒有哪一種液位測量技術能夠適應所有的介質或環境。而制藥過程需要通過實時監測、自動控制、調度管理,以達到降本增效、確保安全的目的,這就要求制藥企業根據測量要求和使用環境,針對每種測量方式的特點和優點,認真調研求證,科學地選擇液位檢測技術及相應的檢測儀表,以保障檢測的可靠性、穩定性。
上一條:電磁流量計在淡濃堿生產中流量測量的案例分析
下一條:變徑整流器在渦街流量計的流量測量中的作用及應用介紹
- 相關文章
-
- 80G 高頻雷達物位計液位計適用于泡沫和攪拌工況的原因分析 【2025-08-06】
- 80G高頻雷達液位計防腐防爆耐高溫的功能是如何實現的? 【2025-07-23】
- 高頻雷達液位計在石油行業液位測量應用中的優勢有哪些 【2025-07-17】
- 雷達液位計測量時如何有效規避攪拌葉片和泡沫的干擾? 【2025-07-07】
- 智能旋進旋渦流量計在正式投產之前需做足前期準備功課 【2015-04-27】
- 智能電磁流量計的轉換器在炎熱夏季防止遭雷擊的措施 【2015-06-03】
- 電伴熱磁翻板液位計在油田三相分離器中應用的技術分析 【2015-08-30】
- 磁翻板液位計組成的智能量油儀在單井量油中的應用分析 【2016-05-02】
- 儀器儀表市場融入電子商務,將成為未來發展趨勢 【2017-07-29】
- 渦街流量計在測量過程中對于管道的變徑整流器應用分析 【2017-10-31】








