- 雷達液位計料位計系列產品
- 壓力/液位/差壓/密度變送器
- 液位儀表系列
- 流量儀表系列
- 物位儀表系列
- 液位/溫度/壓力/流量-報警儀
- PLC/DCS自動化控制監控系統
- GPRS無線遠傳裝置
- 有紙/無紙記錄儀系列
- 溫度儀表系列
- 分析儀|檢測儀|校驗儀系列
電話:86 0517-86917118
傳真:86 0517-86899586
銷售經理:1560-1403-222 (丁經理)
??? ? ? ? 139-1518-1149 (袁經理)
業務QQ:2942808253 / 762657048
網址:http://www.webcube.com.cn
重錘式料位計

產品編號: RZ-UZ-20
產品名稱: RZ-UZ-20 重錘式料位計
產品類別:重錘式料位計
RZ-ZC-20-3重錘料位計的詳細資料:
一、 RZ-UZ-20-3重錘式料位計概述:
RZ-UZ-20-3重錘式料位計可用來測量粉狀、顆粒狀及塊狀固體物料料倉的料位,使用戶可靠地掌握料倉中的料位。
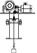
料位計由傳感器及控制顯示儀表構成,傳感器的設計吸收了國內外同類產品的優點,其獨特的結構與傳動方式使以往許多其它形式的重錘式料位計經常出現的毛病都得以克服,作到運行可靠、維護量小、應用面廣。(見圖1、2)
圖1 傳感器外形 圖2 內部結構示意圖
控制顯示器采用51 系列單片機,由程序控制傳感器的整個探測過程的動作并檢測其信號,進行計算,在面板上的顯示窗口顯示料位數字,并有相應的4-20mA模擬電流信號輸出,測量可定時自動進行,也可手動測量或由上位計算機控制。
本料位計現場表(一次表)可分為二種規格:0~8米、0~15米,0~30米。
顯示控制器(二次表見圖3)的程序芯片根據不同的應用場合大致分為:
a.量程0~8米可調,數字顯示為料位高度。(一般用于電廠鍋爐煤粉倉及粉煤灰倉,3米起每檔0.2米)
b.量程0~9.2米可調,數字顯示為料位高度。(一般用于電廠鍋爐煤粉倉及粉煤灰倉,5米起每檔0.2米。
c.量程0~15.5米可調,數字顯示為料位高度。(每檔0.5米)
d.量程5~20.5米可調,數字顯示為料位高度。(每檔0.5米)
e.量程16.5~32米可調,數字顯示為料位高度(每檔0.5米)
f.特殊場合專用芯片。
在每種規格中具體量程設定由DIP開關進行選擇。
二、RZ-UZ-20重錘式料位計的主要技術指標:
1. 傳感器
測量范圍: 0~8米,0~16米,0~32米(特殊規格可協商)
測量精度: ±1%
重復性: ±1%
分辨率: ±3cm
探測速度: 0.15m/s
測量帶: 不銹鋼鋼絲繩
重 錘 重 量: 1kg
電機停轉力矩: 5N.m
功 耗: 靜止時 0W 運行時 40W
環境溫度: -40℃~+60℃
重 量: 30kg
1. 控制顯示儀表
電源電壓: 220VAC±10% 50Hz±1Hz
功 耗: 靜止時 15W 運動時 55W
環境溫度: -30℃~+60℃
數字顯示: 0.00~20.50(米)
電流輸出: 4~20mA
電流輸出信號精度: ±1%
定時時間: 15~130分鐘(或按用戶要求定)
與傳感器大距離: 0.5km
重 量: 5kg
外形尺寸: 寬88×高159×長503
開孔尺寸: 寬(77+1)×高(153+1)
三、RZ-UZ-20重錘式料位計的工作原理:
安裝在料倉頂部的重錘式料位計傳感器的探測過程由控制顯示儀表發出的信號控制。傳感器由可逆電機、蝸輪、蝸桿、絲杠、齒輪軸、繞線筒、靈敏杠桿等組成。(見圖2)
當傳感器接到探測命令時:電機正轉,經蝸輪、蝸桿減速后帶動齒輪軸和繞線筒轉動,使鋼絲繩下放,帶動重錘由倉頂下降。當重錘降至料面時被料面托起而失重,鋼絲繩松馳,靈敏杠桿動作使
微動開關接觸,控制顯示器得到該信號立即發出電機反轉命令,重錘上升返回,直到繞線筒碰上到頂開關,電機停轉,重錘回到倉頂
原始位置,完成一次探測過程。
在此過程中控制顯示儀表通過檢測繞線筒的轉數計算出重錘從倉底到料面間的距離,在面板進行數字顯示,并在后面板端子上輸出4~20mA電流。
裝配實拍圖:

- 相關文章
-
- 雷達液位計的核心技術參數 【2025-10-29】
- 雷達液位計優點和缺點 【2025-10-28】
- 高頻雷達料位計采用萬向型法蘭安裝與吹掃裝置要注意哪些因素 【2025-08-06】
- 80G 高頻雷達物位計液位計適用于泡沫和攪拌工況的原因分析 【2025-08-06】
- 重錘式料位計說明書,選型手冊PDF下載 【2017-10-14】








